Wohnen mit REGIOWERT
Start Die Häuser Die Umgebung Broschüre anfordern Impressum & Datenschutz

Exposé anfordern

Weiter mit Informationen zur Lage...

Lebensqualität in Wien-Nähe

Angeboten werden Einfamilienhäuser und Doppelhaushälften zum Kauf. Die hochwertigen Neubauten sind ideal für Familien und in Pendel-Nähe zu Wien.

Aktuelle Angebote gibt es in Unterwaltersdorf und Pottendorf-Landegg zu Kaufpreisen ab 449.900,- Euro für 125 QM naturnahes Zuhause in guter Infrastruktur.

Exposé anfordern

Neubau moderner Wohnhäuser in attraktiver Lage

Regiowert - die Häuser
  • Einfamilien- und Doppelhäuser
  • Unterwaltersdorf und Pottendorf-Landegg
  • 125 m² Wohnfläche, individuelle Gestaltungsmöglichkeiten
  • Massive Bauweise und gute Ausstattung
  • Niedrigenergie-Standard: Energiepass HWB: 35 kWh/m²/Jahr

Exposé anfordern

Das Hintergrundbild zeigt die Ruine des Wasserschlosses Pottendorf in unmittelbarer Nähe der Wohnhäuser.

Die Lage

Regiower - die Häuser
  • Mit dem Zug oder Auto in 20 Minuten in Wien
  • Dinge des täglichen Bedarfs in fünf Minuten erreichbar
  • gutes Angebot an Kindergärten und Schulen
  • hoher Freizeitwert für die ganze Familie

Exposé anfordern

Das Hintergrundbild zeigt die Ruine des Wasserschlosses Pottendorf in unmittelbarer Nähe der Wohnhäuser.

Exposé anfordern

Weiter mit Informationen zum Gebäude...

Zwischen Bergen und Burgen

....und in 20 Minuten mit der Bahn in Wien.

Mit dem Auto, der Bahn oder dem Rad:

  • Wien, über A2 und mit der Bahn
  • Wiener Neustadt, 17 Minuten mit der Bahn
  • Baden, 20 km entfernt
  • Neufelder See, 20 Minuten mit dem Rad
  • Kletterpark Tattendorf, 20 km
  • Outletcenter Parndorf, 40 km
  • Shoppingcity Süd, 20 km

zu Fuß:

  • gute Auswahl an Kindergärten
  • unterschiedliche Schulformen (Montessori, Don Bosco-Gymnasium)
  • Ärzte und Apotheken
  • Einzelhandel, Bäcker und Friseure

Exposé anfordern

Das Hintergrundbild zeigt das nur knapp 20 km entfernte Baden bei Wien.

Exposé anfordern

Weiter mit Informationen zu den Projektpartnern...

Die Häuser

Regiowert

Einfamilienhaus, Kaufpreis ab 494.900,- Euro (inklusive Aufschließungskosten)

Regiowert

Doppelhaushälfte, Kaufpreis ab 449.900,- Euro (inklusive Aufschließungskosten)

  • 125 m² Wohnfläche
  • Vier oder fünf Zimmer
  • Zahlreiche Grundrissvarianten möglich
  • Individuelle Gestaltungsmöglichkeiten
  • Fußbodenheizung
  • Sparsame Luftwärmepumpe (auch für Kühlung)

Exposé anfordern

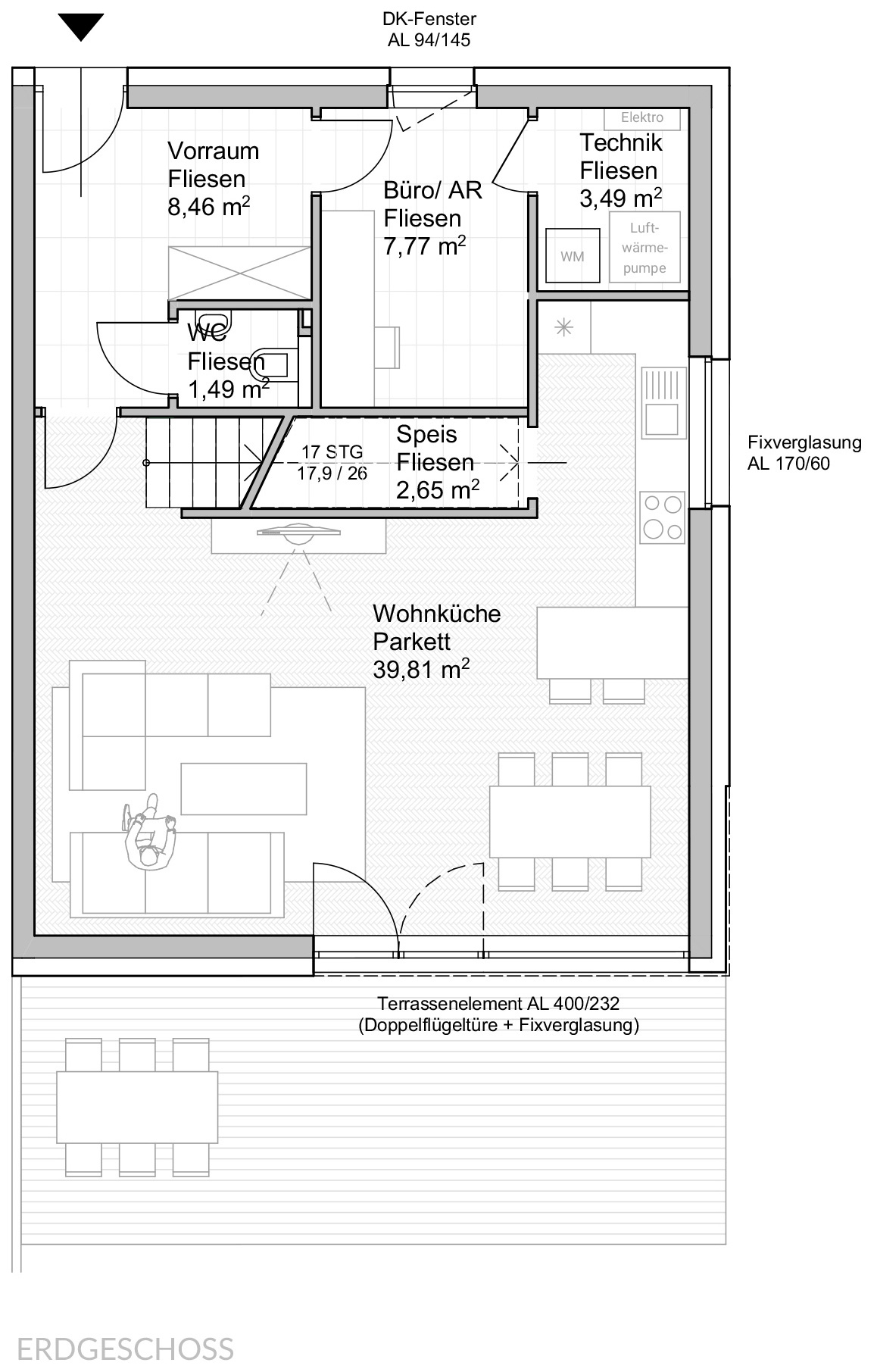
Grundriss Erdgeschoss

Regiowert

*exemplarische Grundrisse, bitte sehen Sie in das Exposé der einzelnen Angebote.

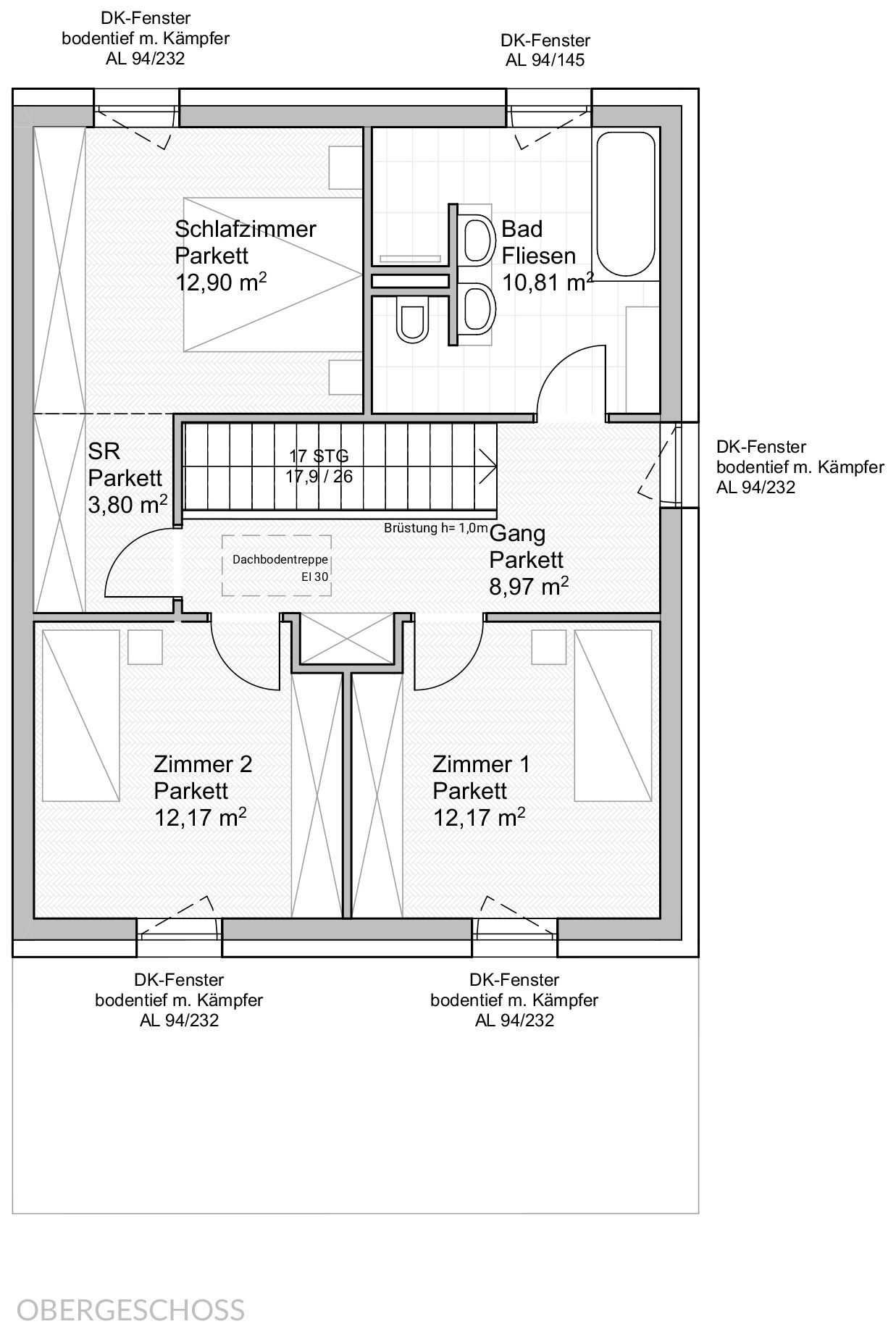
Grundriss Obergeschoss

Regiowert

*exemplarische Grundrisse, bitte sehen Sie in das Exposé der einzelnen Angebote.

Seit 10 Jahren Wohnqualität und Kompetenz für Niederösterreich, Wien und das Burgenland

Vertriebskontakt:
Immobilien Permoser GmbH
Telefon 02625/32268

Exposé anfordern

Impressum | Datenschutzerklärung

Bitte teilen Sie uns Ihre E-Mail Adresse und Ihren Namen mit. Sie erhalten umgehend weitere Informationen von uns:





Mit der Übermittlung Ihrer Daten erteilen Sie Ihr Einverständnis für den Empfang von E-Mails. Sie können dieses Einverständnis jederzeit widerrufen bzw. die E-Mails mit einem Klick abbestellen.

Datenschutzerklärung

Verantwortliche Stelle & Ansprechpartner
REGIOWERT
Postgasse 9
7202 Bad Sauerbrunn

Allgemeines zur Verwendung von Daten
Wir erheben Daten ausschließlich Zweck-gebunden und auf Basis der rechtlichen Bestimmungen gem. Art. 6 ff DSGVO. Bei der Nutzung gewisser Dienste unserer Webseite können unter anderem Daten wie zum Beispiel Vor- und Nachname, Anschrift, Telefonnummer oder auch die Email-Adresse erhoben werden. Dies ist insbesondere bei Anfragen in Bezug auf unserer Dienstleistungen notwendig, um den Kontakt durch unsere Mitarbeiter herstellen zu können.

Diese Daten werden unter Einsatz aller notwendiger organisatorischer und technischer Sicherheitsmassnahmen vor Missbrauch geschützt. Dies bedingt unter anderem der Einsatz von aktueller Software, Verwendung von Pseudonymisierungsmassnahmen oder auch Verschlüsselung beim Datentransfers über HTTPS (SSL-Zertifikat).

Kontaktaufnahme in der allgemeinen Geschäftsgebarung
Wenn Sie mit uns zum Zwecke der Konsumation unserer Leistungen Kontakt aufnehmen, speichern wir ihre Kontaktdaten auf Basis Art. 6 Abs 1 lit b DSGVO, um eine Vertragserfüllung zu gewährleisten. Insofern im Zuge der Kommunikation kein Vertrag zustande kommt, werden ihre Daten lediglich auszugsweise und im notwendigen Maße zur Dokumentation der Korrespondenz gespeichert und nach einer entsprechenden Zeitspanne wieder gelöscht.

Newsletter und andere Werbemaßnahmen
Um unsere Kunden regelmäßig über laufende Angebote, Workshops, Partner und sonstige Events rund um unser Unternehmen zu informieren, bieten wir einen regelmäßigen elektronischen Informationsservice „Newsletter“ an. Die Nutzung dieses Service ist abseits aller Dienstleistungen möglich und erfordert lediglich die Preisgabe ihrer Email-Adresse, um die dementsprechenden Informationen zu erhalten.Email-Adressen, die wir zu diesem Zwecke verarbeiten, basieren auf der Rechtsgrundlage gem. Art. 6 Abs 1 lit a DSGVO und können jederzeit widerrufen werden. Ihre Daten werden dabei zu keiner Zeit an Dritte weitergegeben.

Wenn Sie einen derartigen Service in Anspruch nehmen wollen oder weitere Fragen zu diesem Thema an uns richten möchten, können Sie uns jederzeit unter willkommen@regiowert.at kontaktieren.

Automatische Erfassung von Daten
Beim Besuch unserer Webseite, werden automatisch Informationen seitens unseres Hosting-Anbieters [hier Anbieter einfügen] gespeichert. Es handelt sich dabei unter anderem um Server-Logfiles, welche Name der Webseite/Unterseite, Uhrzeit, Datum und Dateien des Abrufs erfassen. Diese Daten werden in der Regel zur systemischen und kategorischen Auswertung verwendet und dienen nur in Ausnahmefällen, speziell aber im Falle rechtlicher Streitigkeiten, als Evidenz. Wenn Sie beim Besuch unserer Webseite keine Funktionen nutzen, bei denen Sie ihre Email-Adresse oder andere Daten angeben müssen, so sind bei Verlassen der Seite keine personenbezogenen Daten von Ihnen erfasst worden.

Cookies
Unsere Website verwendet HTTP-Cookies um nutzerspezifische Daten zu speichern. Ein Cookie ist ein kurzes Datenpaket, welches zwischen Webbrowser und Webserver ausgetauscht wird.Man unterscheidet mehrere Kategorien von Cookies: unbedingt notwendige Cookies um grundlegende Funktionen der Website sicherzustellen, funktionelle Cookies um die Leistung der Webseite sicherzustellen und zielorientierte Cookies um das Benutzererlebnis zu verbessern.

Wir nutzen Cookies, um unsere Webseite nutzerfreundlicher zu gestalten. Einige Cookies bleiben auf Ihrem Endgerät gespeichert, bis Sie diese löschen. Sie ermöglichen es uns, Ihren Browser beim nächsten Besuch wiederzuerkennen. Wenn Sie dies nicht wünschen, so können Sie Ihren Browser so einrichten, dass er Sie über das Setzen von Cookies informiert und Sie dies nur im Einzelfall erlauben. Sie können jederzeit Cookies, die sich bereits auf Ihrem Computer befinden, löschen oder Cookies deaktivieren. Wenn Sie generell nicht gestatten, Cookies zu nutzen, d.h. diese per Browsereinstellung deaktivieren, können manche Funktionen und Seiten nicht wie erwartet funktionieren.

Google Analytics
Diese Website benutzt Google Analytics, einen Webanalysedienst der Google Inc. („Google“). Google Analytics verwendet sog. „Cookies“, Textdateien, die auf Ihrem Computer gespeichert werden und die eine Analyse der Benutzung der Website durch Sie ermöglichen. Die durch das Cookie erzeugten Informationen über Ihre Benutzung dieser Website werden in der Regel an einen Server von Google in den USA übertragen und dort gespeichert.

Im Falle der Aktivierung der IP-Anonymisierung auf dieser Website, wird Ihre IP-Adresse von Google jedoch innerhalb von Mitgliedstaaten der Europäischen Union oder in anderen Vertragsstaaten des Abkommens über den Europäischen Wirtschaftsraum zuvor gekürzt. Nur in Ausnahmefällen wird die volle IP-Adresse an einen Server von Google in den USA übertragen und dort gekürzt. Im Auftrag des Betreibers dieser Website wird Google diese Informationen benutzen, um Ihre Nutzung der Website auszuwerten, um Reports über die Websiteaktivitäten zusammenzustellen und um weitere mit der Websitenutzung und der Internetnutzung verbundene Dienstleistungen gegenüber dem Websitebetreiber zu erbringen. Die im Rahmen von Google Analytics von Ihrem Browser übermittelte IP-Adresse wird nicht mit anderen Daten von Google zusammengeführt. Sie können die Speicherung der Cookies durch eine entsprechende Einstellung Ihrer Browser-Software verhindern; wir weisen Sie jedoch darauf hin, dass Sie in diesem Fall gegebenenfalls nicht sämtliche Funktionen dieser Website vollumfänglich werden nutzen können. Sie können darüber hinaus die Erfassung der durch das Cookie erzeugten und auf Ihre Nutzung der Website bezogenen Daten (inkl. Ihrer IP-Adresse) an Google sowie die Verarbeitung dieser Daten durch Google verhindern, indem Sie das unter dem folgenden Link verfügbare Browser-Plugin herunterladen und installieren.
Sie können die Erfassung durch Google Analytics verhindern, indem Sie auf folgenden Link klicken. Es wird ein Opt-Out-Cookie gesetzt, das die zukünftige Erfassung Ihrer Daten beim Besuch dieser Website verhindert: Google Analytics deaktivieren

Nähere Informationen zu Nutzungsbedingungen und Datenschutz finden Sie unter Google Analytics Terms bzw. unter Google Policies. Wir weisen Sie darauf hin, dass auf dieser Website Google Analytics um den Code „anonymizeIp“ erweitert wurde, um eine anonymisierte Erfassung von IP-Adressen (sog. IP-Masking) zu gewährleisten. Wir nutzen Google Analytics zudem dazu, Daten aus AdWords zu statistischen Zwecken auszuwerten.

Google Analytics – Berichte zu demografischen Merkmalen und Interessen
Wir haben in Google Analytics die Funktionen für Werbeberichte eingeschaltet. Die Berichte zu demografischen Merkmalen und Interessen enthalten Angaben zu Alter, Geschlecht und Interessen. Damit können wir uns – ohne diese Daten einzelnen Personen zuordnen zu können – ein besseres Bild von unseren Nutzern machen. Mehr über die Werbefunktionen erfahren Sie auf Support Google.

Sie können die Nutzung der Aktivitäten und Informationen Ihres Google Kontos unter “Einstellungen für Werbung” auf Adssettings Google per Checkbox beenden.

Anonymize-IP
Wir haben auf dieser Webseite die IP-Adressen-Anonymisierung von Google Analytics implementiert. Diese Funktion wurde von Google entwickelt, damit diese Webseite die geltenden Datenschutzbestimmungen und Empfehlungen der lokalen Datenschutzbehörden einhalten kann, wenn diese eine Speicherung der vollständigen IP-Adresse untersagen. Die Anonymisierung bzw. Maskierung der IP findet statt, sobald die IP-Adressen im Google Analytics-Datenerfassungsnetzwerk eintreffen und bevor eine Speicherung oder Verarbeitung der Daten stattfindet. Mehr Informationen zur IP-Anonymisierung finden Sie auf Support Google.

Einbindung von Diensten und Inhalten Dritter
Innerhalb dieses Onlineangebotes Inhalte Dritter, wie zum Beispiel Videos von YouTube, Kartenmaterial von Google-Maps, RSS-Feeds oder Grafiken von anderen Webseiten eingebunden werden. Dies setzt immer voraus, dass die Anbieter dieser Inhalte (nachfolgend bezeichnet als „Dritt-Anbieter“) die IP-Adresse der Nutzer wahrnehmen. Denn ohne die IP-Adresse könnten sie die Inhalte nicht an den Browser des jeweiligen Nutzers senden. Die IP-Adresse ist damit für die Darstellung dieser Inhalte erforderlich. Wir bemühen uns, nur solche Inhalte zu verwenden, deren jeweilige Anbieter die IP-Adresse lediglich zur Auslieferung dieser Inhalte verwenden.

Ihre Rechte
Sie haben das Recht, jederzeit Auskunft über Ihre bei uns gespeicherten personenbezogenen Daten zu erhalten. Ebenso haben Sie das Recht auf Berichtigung, Sperrung oder, abgesehen von der vorgeschriebenen Datenspeicherung zur Geschäftsabwicklung, Löschung Ihrer personenbezogenen Daten.

Wenn Sie glauben, dass die Verarbeitung Ihrer Daten gegen das Datenschutzrecht verstößt oder Ihre datenschutzrechtlichen Ansprüche sonst in einer Weise verletzt worden sind, können Sie sich bei der Aufsichtsbehörde beschweren. In Österreich ist dies die Datenschutzbehörde, deren Webseiten Sie unter dsb.gv.

Impressum

Unternehmen

REGIOWERT IMMOBILIEN GmbH
Postgasse 9
7202 Bad Sauerbrunn

Geschäftsführer
Fabian Tribrunner, BA
Mag. Stephan Gruber

Rechtsform
Gesellschaft mit beschränkter Haftung

UID-Nummer
ATU77783427

Firmenbuchnummer
FN 572605t

Firmenbuchgericht
LG Eisenstadt

Gerichtsstand
Mattersburg